Designed by: Anthony Chan, Chan Architecture
Photography by: Elise Scott
From the renovating architect:
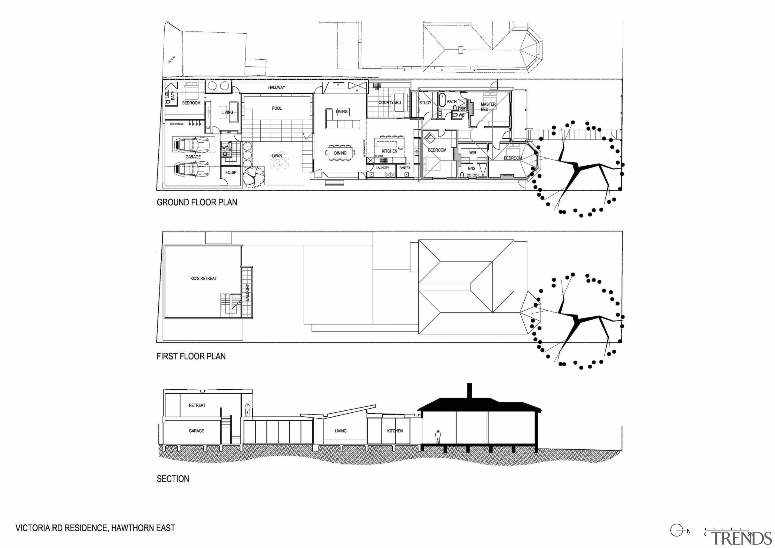
Situated on a heritage-graded street in Hawthorn East, this project seamlessly blends the enduring charm of a double-fronted Victorian terrace house with contemporary design – to create a multi-generational family home.
The original front section of the house has been preserved and repurposed into three bedrooms, a study, and two bathrooms.
Beyond the historic facade, a modern extension reveals a spacious open-plan kitchen, dining, and living area – designed as the central hub for family gatherings.
A glazed hallway wraps around the new swimming pool, guiding you to a rear structure that houses a self-contained residence for elderly parents, a double garage, and a staircase leading to a dedicated children’s retreat.
– Proud face, open heart –
A key design challenge was to bring natural light into the south-facing rear living spaces.
This was achieved by integrating two internal courtyards, a large kitchen skylight, and a butterfly roof form with north-facing highlight windows, ensuring a bright, inviting environment throughout the year.
– Proud face, open heart –
The interior design features a palette of natural blackbutt flooring, dark timber-veneered joinery, and large-format porcelain benchtops, with timber battens and mirrors adding layers of texture and visual interest.
In line with a strong commitment to sustainability, the project incorporates passive design principles to reduce energy consumption and minimise its carbon footprint.
Key sustainable features include highly insulated double-glazed windows, extensive thermal insulation in walls and roofs, and high-performance building wraps to limit air leakage.
The result is a home that remains comfortable year-round with minimal energy requirements.
– Proud face, open heart –
Explore the transformed home.
Credit List
Renovating architectAnthony Chan, Chan Architecture | Kitchen designerChan Architecture |
Window/door joineryAWS Windows | Feature light fittingsEglo Cineme and About Space |
FlooringBalfour Timber | PhotographerElise Scott |
From the renovating architect:
Situated on a heritage-graded street in Hawthorn East, this project seamlessly blends the enduring charm of a double-fronted Victorian terrace house with contemporary design – to create a multi-generational family home.
The original front section of the house has been preserved and repurposed into three bedrooms, a study, and two bathrooms.
Beyond the historic facade, a modern extension reveals a spacious open-plan kitchen, dining, and living area – designed as the central hub for family gatherings.
A glazed hallway wraps around the new swimming pool, guiding you to a rear structure that houses a self-contained residence for elderly parents, a double garage, and a staircase leading to a dedicated children’s retreat.
– Proud face, open heart –
A key design challenge was to bring natural light into the south-facing rear living spaces.
This was achieved by integrating two internal courtyards, a large kitchen skylight, and a butterfly roof form with north-facing highlight windows, ensuring a bright, inviting environment throughout the year.
– Proud face, open heart –
The interior design features a palette of natural blackbutt flooring, dark timber-veneered joinery, and large-format porcelain benchtops, with timber battens and mirrors adding layers of texture and visual interest.
In line with a strong commitment to sustainability, the project incorporates passive design principles to reduce energy consumption and minimise its carbon footprint.
Key sustainable features include highly insulated double-glazed windows, extensive thermal insulation in walls and roofs, and high-performance building wraps to limit air leakage.
The result is a home that remains comfortable year-round with minimal energy requirements.
– Proud face, open heart –
Explore the transformed home.
Credit List
Renovating architectAnthony Chan, Chan Architecture | Kitchen designerChan Architecture |
Window/door joineryAWS Windows | Feature light fittingsEglo Cineme and About Space |
FlooringBalfour Timber | PhotographerElise Scott |
Related Articles
Desert romance
Sandy tones, soft curves and repeated interior design elements add to the character of this contemporary, centrally set family kitchen
Portfolios
View Industry Specialists
Portfolios
View Industry Specialists
Askö
Furniture designed for life. Ethically made dining and living furniture and accessories by international and New Zealand designers where refined elegance meets sleek, contemporary form. Explore our extensive range of designer furniture via our Christchurch showroom or browse online.
Plumbing World
Plumbing World is New Zealand’s most prominent 100% Kiwi-owned national plumbing merchant, operating over 50 branches from Kerikeri to Invercargill. Plumbing World offers a wide range of bathroom, kitchen, laundry, heating, and hot water products, catering to trade professionals and homeowners.
Landmark Homes
Founding directors Paul and Debbie Clarke established Landmark Homes in 1977. Their vision was to offer “something more exciting” than the average home: a home that made creative use of space but was also beautiful to live in.
Poggenpohl
Poggenpohl is a premium German kitchen brand known for its innovation, timeless design, and precision craftsmanship, offering bespoke kitchen solutions that blend luxury with functionality.
Mastercraft Kitchens
Founded in 1985, we are the largest group of independently owned and operated kitchen businesses in New Zealand, operating under a national banner. Our licensees have been carefully selected and are experts in their craft. We share an absolute passion for the design, manufacture and installation of high quality, well designed kitchens and other household cabinetry provided with personalised, friendly local service. Think national - be local.
Kitchen Studio
At Kitchen Studio we are very proud of the fact that we are been voted the most trusted kitchen brand in New Zealand for the ninth year running, and there are good reasons why more Kiwis trust us to transform their kitchen than anyone else.
Box™.
Box isn’t like other New Zealand architecture firms; we’re a building design company responsible for every part of the process, from design to construction. If you’re looking for a team of designers or builders in Auckland, we can help.
The best architects know what it means to design both beautifully and practically, ensuring the best builders can, in turn, build more efficiently and collaboratively with you and the designer or architect.
Our consistent and attentive involvement of each team throughout the entire design-build process includes our in-house cost estimation team, who value-engineer projects to ensure the highest quality and value, while respecting your vision as our client.