Designed by: Lim Kee Yen, KeeYen Architect
Photography by: Bricks Begin Photography
Overview
Project architect Lim Kee Yen, KeeYen Architect: “The three distinct masses within this architectural composition transcend juxtaposition, as they seamlessly intertwine both in form and function to create a harmonious living environment.
Each volume is interconnected to fulfil the diverse needs of the household, fostering a sense of unity and cohesion within the space.
Selected materials are juxtaposed to evoke spatial effects, enhancing the overall aesthetic while adhering to passive design strategies tailored for tropical living.
This deliberate fusion of architectural elements and passive strategies not only enriches the sensory experience but also underscores the commitment to creating a sustainable and comfortable dwelling for its inhabitants.
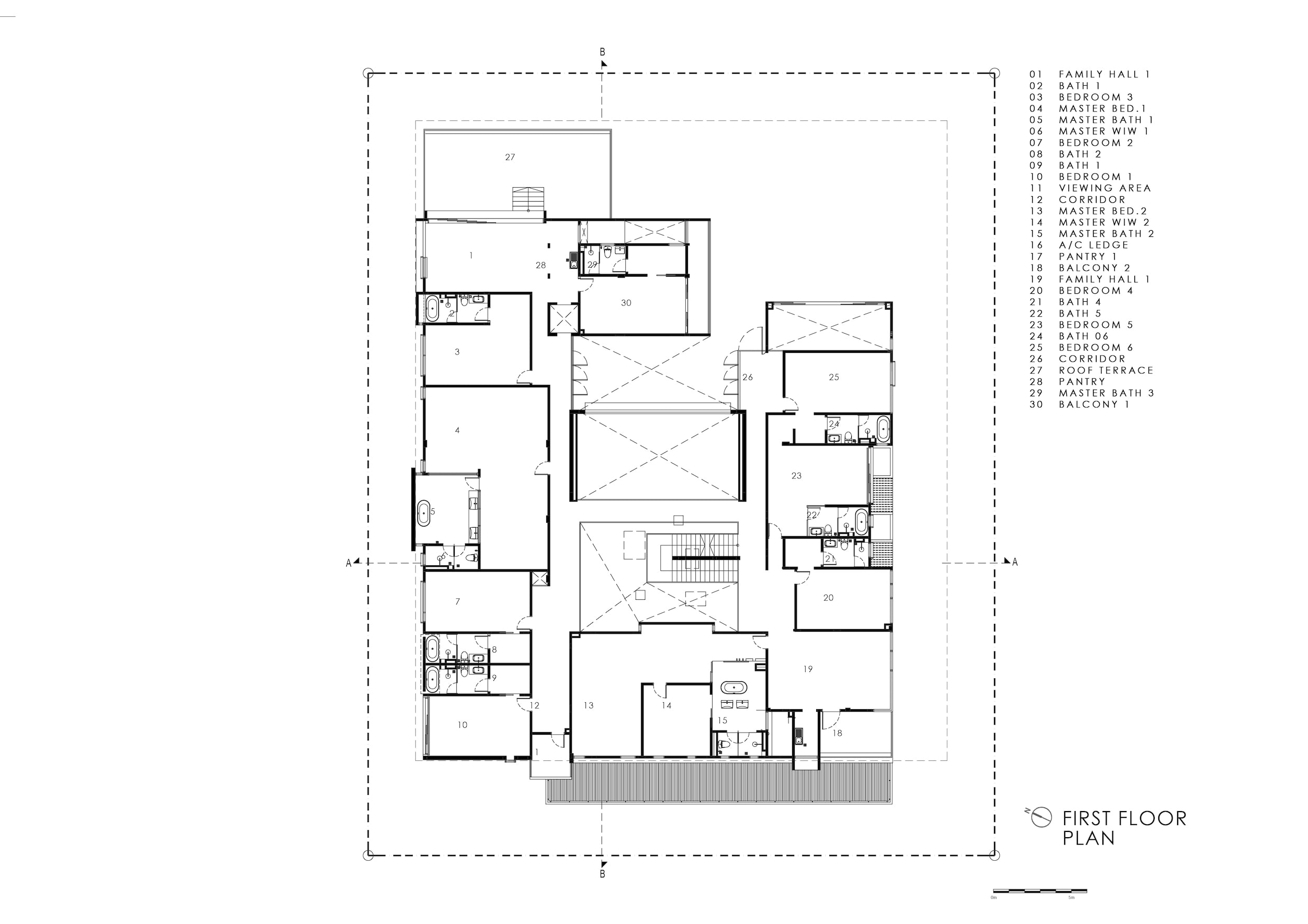
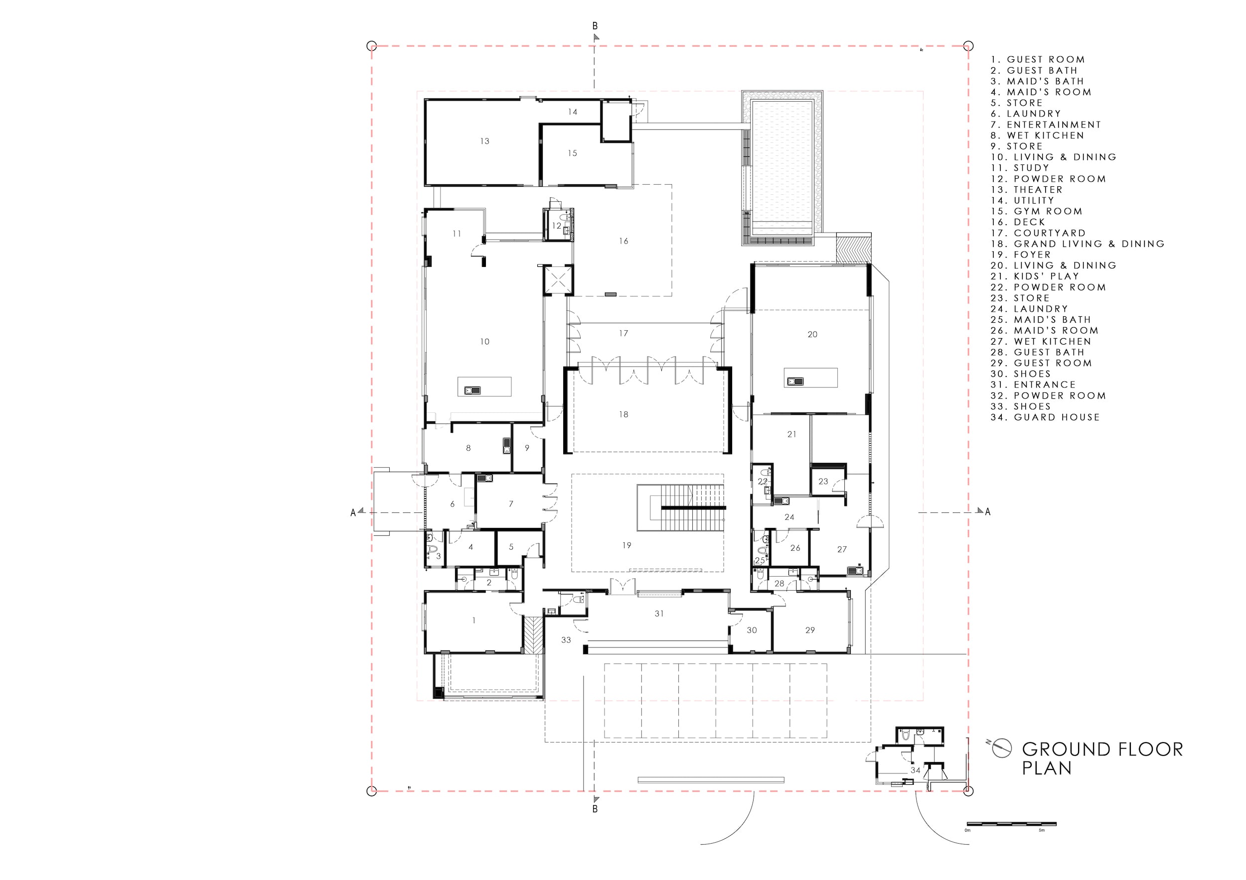
Project description
This home was initially conceived as a sprawling mansion for three generations of a family in Ipoh, Perak, Malaysia.
However, we reworked the concept into a refined two-level dwelling, while retaining our focus on architectural juxtaposition – tailored to accommodate the diverse needs of three generational occupants.
Eschewing extravagance for practical elegance, our design embodies the essence of tropical living.
The design employs a language of volumes, each distinct yet interconnected, symbolising the unique needs and aspirations of its inhabitants.
Tailored generational units
Each of the three juxtaposed masses symbolises a distinct, tailored generational unit – resulting in a bold and innovative architectural composition.
From communal gathering spaces such as the living hall and dining hall, to the private retreats, every aspect of the residence is calibrated to foster harmony and comfort.
At its heart lies a cooling pool and a courtyard, engineered to temper the tropical breeze and create a comfortable atmosphere within.
Characterised by expansive openings, the interior is bathed in abundant natural light – aligned with the Sun’s path to optimise illumination while minimising heat gain.
The home’s juxtaposed volumes are seamlessly interconnected to create a symphony of individuality within the harmonious whole – every corner of the space is tailored to meet the individual needs of family members.
Street connection
Engaging with the surroundings is facilitated through thoughtful elements like the ‘Say Hi’ box, which encourages interaction with the vibrant pulse of street life beyond the home.
The dynamic front facade, with its fluted concrete blocks and stainless-steel inlays, commands attention, creating a lively exterior that captivates the eye.
Material impact
The juxtaposition of materials such as concrete, nyatoh timber strips, and balau timber screen enhances the overall architectural vision.
At the heart of the residence lies the central void, allowing natural light to permeate the space and illuminate every corner – the double volume space in the middle of the house is the core tying everything together.
Credit List
ArchitectLim Kee Yen, KeeYen Architect | Civil & structural engineerAJL Perunding |
Mechanical & electrical engineerPerunding KYS Sdn Bhd | Main contractorZhen Ye Projects |
Aluminium doors and windowsTrend Thermal Windows and Doors | MarbleAntico Stone |
Ventilation blocksPremier Building Material | TilesSicis Mosaic Murano Smalto White, Sicis Mosaic Colibri Icemir |
Rainwater Harvesting SystemBMI Group | FansF-Series HVLS Fan, from Benimafans |
Sanitary wares & FittingsGessi; Toto | AwardsTrends International Design Awards (TIDA) International Home of the Year – Finalist |
Overview
Project architect Lim Kee Yen, KeeYen Architect: “The three distinct masses within this architectural composition transcend juxtaposition, as they seamlessly intertwine both in form and function to create a harmonious living environment.
Each volume is interconnected to fulfil the diverse needs of the household, fostering a sense of unity and cohesion within the space.
Selected materials are juxtaposed to evoke spatial effects, enhancing the overall aesthetic while adhering to passive design strategies tailored for tropical living.
This deliberate fusion of architectural elements and passive strategies not only enriches the sensory experience but also underscores the commitment to creating a sustainable and comfortable dwelling for its inhabitants.
Project description
This home was initially conceived as a sprawling mansion for three generations of a family in Ipoh, Perak, Malaysia.
However, we reworked the concept into a refined two-level dwelling, while retaining our focus on architectural juxtaposition – tailored to accommodate the diverse needs of three generational occupants.
Eschewing extravagance for practical elegance, our design embodies the essence of tropical living.
The design employs a language of volumes, each distinct yet interconnected, symbolising the unique needs and aspirations of its inhabitants.
Tailored generational units
Each of the three juxtaposed masses symbolises a distinct, tailored generational unit – resulting in a bold and innovative architectural composition.
From communal gathering spaces such as the living hall and dining hall, to the private retreats, every aspect of the residence is calibrated to foster harmony and comfort.
At its heart lies a cooling pool and a courtyard, engineered to temper the tropical breeze and create a comfortable atmosphere within.
Characterised by expansive openings, the interior is bathed in abundant natural light – aligned with the Sun’s path to optimise illumination while minimising heat gain.
The home’s juxtaposed volumes are seamlessly interconnected to create a symphony of individuality within the harmonious whole – every corner of the space is tailored to meet the individual needs of family members.
Street connection
Engaging with the surroundings is facilitated through thoughtful elements like the ‘Say Hi’ box, which encourages interaction with the vibrant pulse of street life beyond the home.
The dynamic front facade, with its fluted concrete blocks and stainless-steel inlays, commands attention, creating a lively exterior that captivates the eye.
Material impact
The juxtaposition of materials such as concrete, nyatoh timber strips, and balau timber screen enhances the overall architectural vision.
At the heart of the residence lies the central void, allowing natural light to permeate the space and illuminate every corner – the double volume space in the middle of the house is the core tying everything together.
Credit List
ArchitectLim Kee Yen, KeeYen Architect | Civil & structural engineerAJL Perunding |
Mechanical & electrical engineerPerunding KYS Sdn Bhd | Main contractorZhen Ye Projects |
Aluminium doors and windowsTrend Thermal Windows and Doors | MarbleAntico Stone |
Ventilation blocksPremier Building Material | TilesSicis Mosaic Murano Smalto White, Sicis Mosaic Colibri Icemir |
Rainwater Harvesting SystemBMI Group | FansF-Series HVLS Fan, from Benimafans |
Sanitary wares & FittingsGessi; Toto | AwardsTrends International Design Awards (TIDA) International Home of the Year – Finalist |
Related Articles
Wonder wall
A focal point of this bathroom, a wall of Onyx, Green Natural tiles creates the effect of a larger slab of marble running from behind the vanity through to the shower/bath wet area
Portfolios
View Industry Specialists
Portfolios
View Industry Specialists
Askö
Furniture designed for life. Ethically made dining and living furniture and accessories by international and New Zealand designers where refined elegance meets sleek, contemporary form. Explore our extensive range of designer furniture via our Christchurch showroom or browse online.
Plumbing World
Plumbing World is New Zealand’s most prominent 100% Kiwi-owned national plumbing merchant, operating over 50 branches from Kerikeri to Invercargill. Plumbing World offers a wide range of bathroom, kitchen, laundry, heating, and hot water products, catering to trade professionals and homeowners.
Landmark Homes
Founding directors Paul and Debbie Clarke established Landmark Homes in 1977. Their vision was to offer “something more exciting” than the average home: a home that made creative use of space but was also beautiful to live in.
Poggenpohl
Poggenpohl is a premium German kitchen brand known for its innovation, timeless design, and precision craftsmanship, offering bespoke kitchen solutions that blend luxury with functionality.
Mastercraft Kitchens
Founded in 1985, we are the largest group of independently owned and operated kitchen businesses in New Zealand, operating under a national banner. Our licensees have been carefully selected and are experts in their craft. We share an absolute passion for the design, manufacture and installation of high quality, well designed kitchens and other household cabinetry provided with personalised, friendly local service. Think national - be local.
Kitchen Studio
At Kitchen Studio we are very proud of the fact that we are been voted the most trusted kitchen brand in New Zealand for the ninth year running, and there are good reasons why more Kiwis trust us to transform their kitchen than anyone else.
Box™.
Box isn’t like other New Zealand architecture firms; we’re a building design company responsible for every part of the process, from design to construction. If you’re looking for a team of designers or builders in Auckland, we can help.
The best architects know what it means to design both beautifully and practically, ensuring the best builders can, in turn, build more efficiently and collaboratively with you and the designer or architect.
Our consistent and attentive involvement of each team throughout the entire design-build process includes our in-house cost estimation team, who value-engineer projects to ensure the highest quality and value, while respecting your vision as our client.